Troj podlažná budova s 10 kanceláriami, Riznerova ulica v Bratislave, nad hradom, úžitková 610m2
Riznerova, Bratislava
DETAILY
Typ reality: ina_nehnutelnost
Adresa: Riznerova, Bratislava
Rozloha: 610 m2
Počet izieb: 10
Spôsob vykurovania: ústredné kúrenie
Balkón: 50 m2
Vybavenie: Štandardné
Stav nehnuteľnosti: Kompletná rekonštrukcia
Forma vlastníctva: firemné
VLASTNOSTI
- Výhľad na Bratislavu<br />
- Bezproblémové parkovanie<br />
- 10 kancelárii<br />
- Dostatok skladov<br />
- Vlastné náklady<br />
- Garáž
POPIS
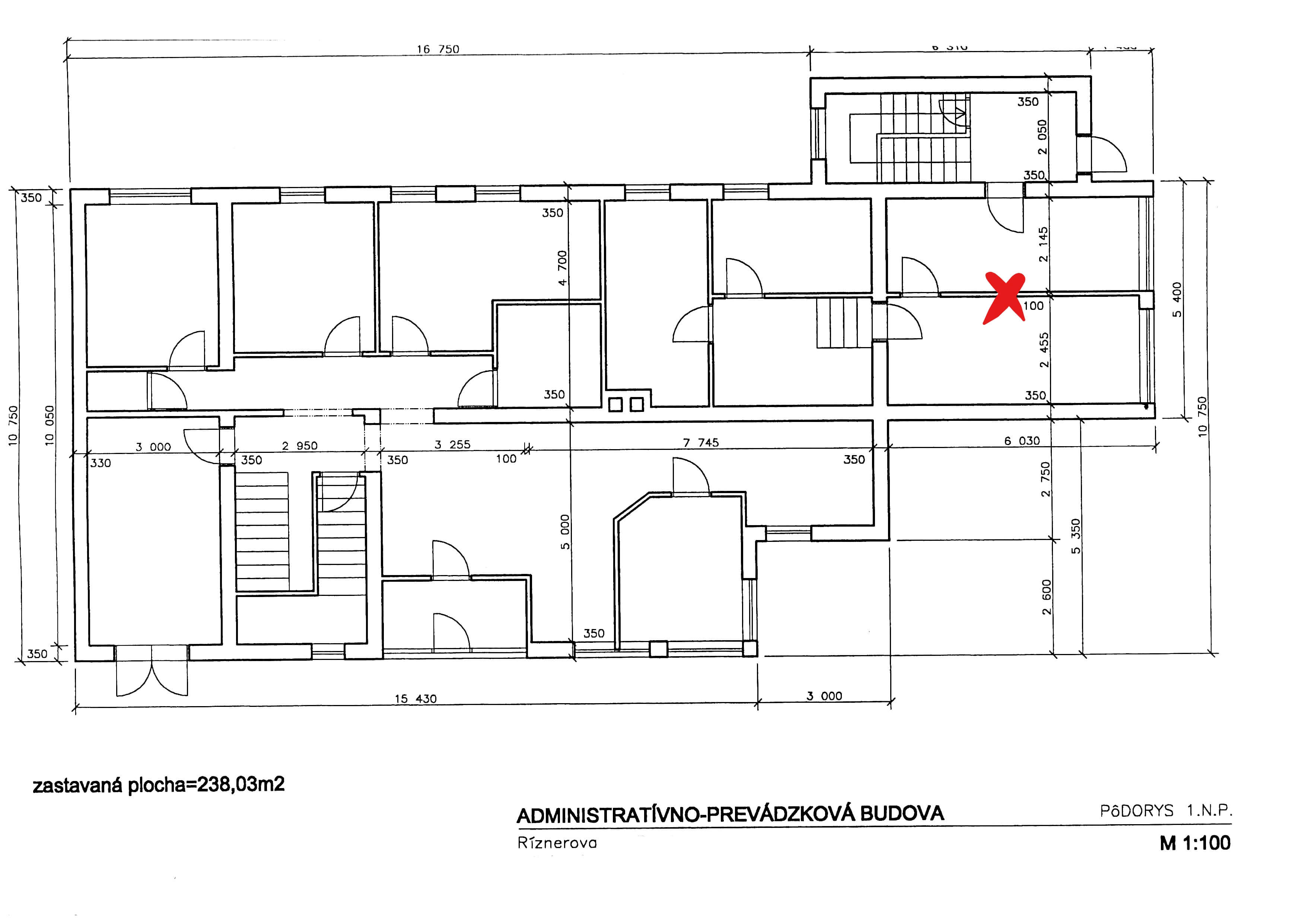
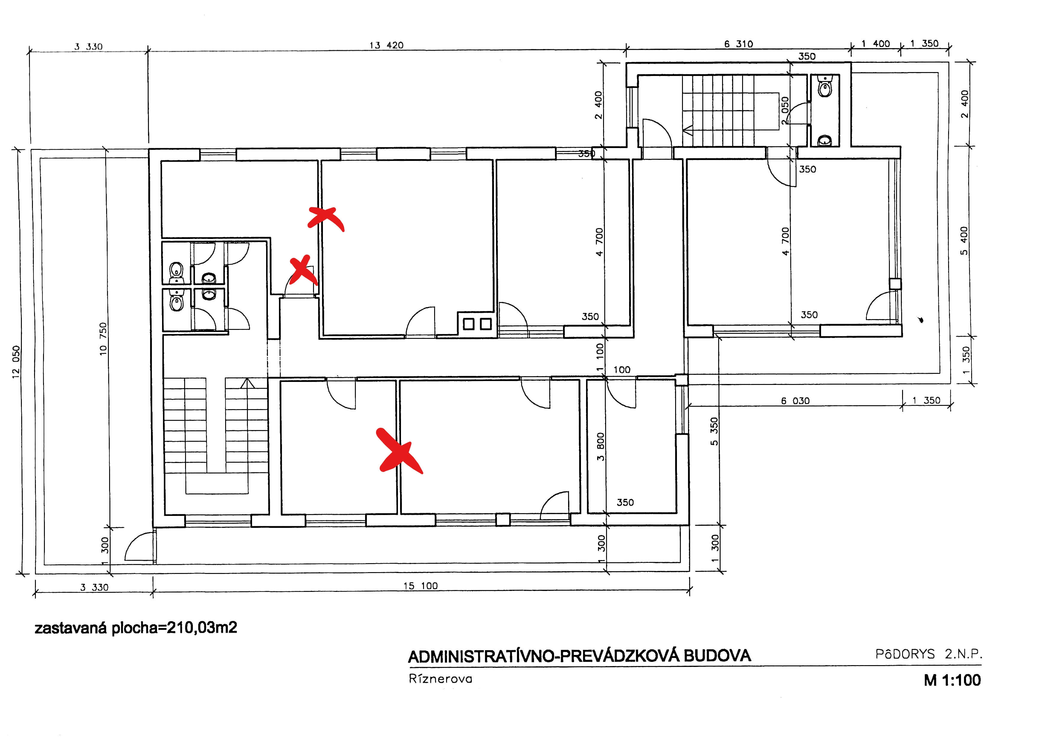
Ponúkame exkluzívne na predaj trojpodlažnú administratívnu budovu s 10 kanceláriami na ulici Riznerova v Bratislave, Staré Mesto, nad hradom. Pozemok o výmere 680m2.
Jedna sa o troj-podlažný samostatný objekt, so vstupnou recepciou, spolu 10 kanceláriami, zasadačkou pre 12 ľudí, 1x väčší open office, 2x kuchynka, záchody na každom podlaží, serverovna, sklad, terasa, balkón, zasklená loggia, garáž + 5 parkovacích miest na pozemku, vzrástla zeleň. Objekt je pekne presvetlený (orientácia J/JV), zateplený, klimatizovaný a z budovy je nádherný výhľad na celú Bratislavu. Budova bola priebežne rekonštruovaná a je celkovo v dobrom stave. V prípade záujmu je možnosť prenájmu budovy aj s kancelárskym nábytkom. Celková podlahová plocha budovy je 610,39 m2. V budove je alarm, kamerový systém, klimatizácia všade.
V budove je plynová kotolňa a prietokový plynový ohrievač. Siete sú voda, kanalizácia, elektrina, plyn.
Do budovy sa dá dostať 2 samostatnými vchodmi.
Náklady mesačné, pri plnej obsadenosti budovy elektrina 300€, plyn 280€.
Teoreticky by bolo možné objekt upraviť na bývanie.
Budova je momentálne s jedným nájomcom, ktorý má v prenájme celú budovu, budova je bez úverov, vecných bremien, pozemky všetky vysporiadané.
Cena za celú nehnuteľnosť je 2.300.000€
Info a obhliadky: Salay Matej 0948 599 090
+421 948 599 090
Riznerova, Bratislava
